INFORMATIVE

Via G.Galilei, 10 - 22075 Lurate Caccivio - Como - Italia

P.IVA - Cod.Fisc. 03607200122  -  Cap. Soc. €  75.000,00 i.v. 

Tel. +39.031.49 00 78

email: sales@3b-lab.com 

Privacy policy

Pannelli in alveolare di alluminio

3B LAB s.r.l.

Cookies policy

Pannelli porta

Home < 

Pannelli semilavorati <

Pannelli porta

Realizzare il pannello porta con la tecnologia in alveolare di alluminio rende possibile la costruzione di porte leggere, resistenti alla flessione, con superfici esterne anche molto pesanti e di grandi dimensioni.

Porta in alveolare di alluminio
porta in alluminio
pannello porta in alveolare di alluminio

Pannello porta con  tecnologia ALUXAPP

Pannello porta scorrevole

Pannello porta battente

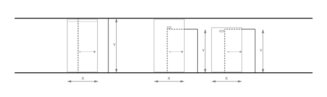
Tipologie porte
tipologie porte battenti

Porte con traverso in muratura sopra

Dimensioni:
X = larghezza, fino a 1400 mm
Y = altezza, fino a 4000 mm
Z = spessore, da 20 a 100 mm

Porte a tutta altezza, pavimento-soffitto

Dimensioni:
X = larghezza, fino a 1400 mm
Y = altezza, fino a 4000 mm
Z = spessore, da 20 a 100 mm

Pannelli porta da laccare

Realizziamo i pannelli boiserie da impiallacciare in tre soluzioni, con :

con ALUXAPP, l'impiallacciatura è direttamente sull' alluminio, per applicazioni in ambienti umidi,

con ​ALUXAPP-H  l'impiallacciatura è su HDF 1.8 mm Sp e

con ​ALUXAPP-T l'impiallacciatura è su truciolare 3 mm Sp, in ambienti senza particolari problemi di umidità.

3b-lab_png

APPLICAZIONI SPECIALI

porta scorrevole in alluminio
Bordatura pannello in alluminio
bordo u pannello in alveolare

Pannello in ALUXAPPA-H bordato in ABS laccato

Essenza impiallacciata direttamente su alluminio


superfici:
lamiere con primer  da 1 mm


telaio 
in Eulithe® o multistrato fenolico


bordo in essenza, in metallo o ABS.

pannello in alluminio

Pannello porta in :

ALUXAPP 

Si sceglie ALUXAPP per applicazioni in ambienti umidi o dove ci sono problemi a laccare direttamente l'alluminio.
- Inserto filettato

pannello in alluminio da laccare

Essenza impiallacciata su HDF 1.8 mm

 

superfici: lamiere con primer

0.5/1 mm + HDF da 1.8 a 6 mm SP


telaio 
in Eulithe® o multistrato fenolico


bordo in essenza, in metallo o ABS.

Pannello porta in :

ALUXAPP-H 

ALUXAPP-H è laccabile più semplicemente, va bene per ambienti normali che non hanno particolari problematiche di umidità.
- Inserto in nylon
- inserto filettato + rondella

pannello in alveolare con alluminio primerizzato

Lamiere preverniciate colore RAL

 

superfici: 

lamiere con preverniciate 1/1.5 mm Sp


telaio 
in Eulithe® o multistrato fenolico


bordo in ABS, in metallo o ABS.

Pannello porta in :

ALUXAPP-V 

- Inserto in nylon
- inserto filettato + rondella

Pannelli porta impiallacciati

Pannelli porta realizzati in tre versioni: ALUXAPP-E, ALUXAPP-TE e ALUXAPP-HE

pannello in alveolare di alluminio rivestito con essenza
pannello porta in alveolare alluminio

Boiserie con pannelli in ALUXAPP laccati

pannello in alluminio satinato

Laccatura  su alluminio da 1 / 1.5 / 2 mm


superfici:
lamiere con primer  da 1 mm


telaio 
in Eulithe® o multistrato fenolico


bordo in essenza, in metallo o ABS.

Pannello porta in :

ALUXAPP 

Si sceglie ALUXAPP per applicazioni in ambienti umidi o dove ci sono problemi a laccare direttamente l'alluminio.
- Inserto filettato

pannello in alveolare da laccare

Laccatura su HDF 1.8  o 6 mm (possibili lavorazioni nello spessore)

 

superfici: lamiere con primer

0.5/1 mm + HDF da 1.8 a 6 mm SP


telaio 
in Eulithe® o multistrato fenolico


bordo in essenza, in metallo o ABS.

Pannello porta in :

ALUXAPP-H 

ALUXAPP-H è laccabile più semplicemente, va bene per ambienti normali che non hanno particolari problematiche di umidità.
- Inserto in nylon
- inserto filettato + rondella

pannello in alveolare da rivestire

Essenza impiallacciata su truciolare 3 mm

 

superfici: lamiere con primer

0.5/1 mm + HDF da 1.8 a 6 mm SP


telaio 
in Eulithe® o multistrato fenolico


bordo in essenza, in metallo o ABS.

Pannello porta in :

ALUXAPP-T 

ALUXAPP-H è laccabile più semplicemente, va bene per ambienti normali che non hanno particolari problematiche di umidità.
- Inserto in nylon
- inserto filettato + rondella

Pannelli in laminato HPL

Si utilizza ALUXAPP-HPL  con telaio in Eulithe per applicazioni in ambienti particolarmente umidi come piscine, bagni ecc.

Mentre ALUXAPP-H.HPL con telaio in multistrato per ambienti normali che non hanno particolari problematiche di umidità.

Con laminato HPL su due lati o un solo lato.

Bianco
Bianco
Pannello in alluminio con laminato HPL

Alluminio + Laminato HDF, su uno o entrambi i lati


superfici:
lamiere con primer 0.5 mm Sp
+ HPL 0.9 mm SP


telaio  in multistrato fenolico o Eulithe®

bordo in ABS, in metallo, profili in 

alluminio a "T" in alluminio

Pannello porta in :

ALUXAPP-HPL 

- E' possibile prevedere uno strato di sughero per l'isolamento acustico .
- Inserto filettato
- Bussola filettata

Pannello in alveolare alluminio con laminato

Alluminio + HDF + Laminato HDF, su uno o entrambi i lati


superfici:
lamiere con primer 0.5 mm Sp + HDF 1.8 mm
+ HPL 0.9 mm SP


telaio  in multistrato fenolico o Eulithe®

bordo in ABS, in metallo, profili in 

alluminio a "T" in alluminio

Pannello porta in :

ALUXAPP-H.HPL 

- E' possibile prevedere uno strato di sughero per l'isolamento acustico .
- Inserto filettato
- Bussola filettata

Ferramenta

Bianco
Ferramenta su pannelli in alveolare alluminio
Inserire ferramenta su pannelli in alluminio

Inserti con avvitamento metrico

.

Gli inserti con filetto metrico vengono ancorati alle pelli in alluminio tramite un sistema di deformazione meccanica dell’inserto stesso. Questo sistema di avvitamento risulta particolarmente solido e reversibile, perché le viti possono essere avvitate e svitate molteplici volte.

Carrelli scorrevoli

.

I carrelli per ante scorrevoli possono essere applicati con i sistemi di avvitamento già descritti e non necessitano di telai perimetrali.

supporto in alveolare di alluminio

Studiamo per le tue esigenze un
pannello porta personalizzato

Pannelli  realizzati con tecnologia ALUXAPP, stabili, leggeri,  resistenti alla flessione.